Trang chủ    Giới thiệu    Monorail trolley

BMU MONORAIL

Cấu hình:

-  Kết cấu hệ rail là hợp kim nhôm, trọng lượng nhẹ

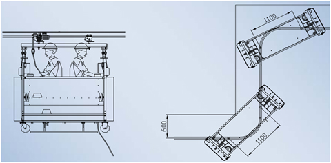
-  Thiết vế xung quanh tòa nhà và vơi bán kính uốn cong R=600 có thể tiếp cận tới bất cứ chỗ nào của tòa nhà, với hệ thống xe đẩy trolley bằng động cơ điện hoặc vận hành bằng tay

-  BMU Monorail kết hợp với BMU-Cradle 120 kg or 240 kg tạo ra một hệ thống linh hoạt chạy xung quanh tòa nhà với chi phí và giá thành thấp

Bao gồm các loại Rail sau:

-  BMU Monorail SCE-160, dùng cho di chuyển ngang và leo với gốc leo tới 300 với cụm xe đẩy trolley bằng động cơ điện

-  BMU Monorail SCE-180, dùng cho di chuyển ngang và leo với gốc leo tới 450 với cụm xe đẩy trolley bằng động cơ điện

-  BMU Monorail C ( C-rail ), dùng cho các chuyển động ngang âm trần, phù hợp với kiến trúc của tòa nhà với cụm di chuyển xe đẩy bang tay hoặc trolley điện

BMU Monorail Omega ( Omega-rail ),dùng di chuyển các hệ thống thang tời bảo trì và vệ sinh mặt ngoài tòa nhà, các hệ mái vòm và mái kính, các đài quan sát không lưu

BMU Monorail cradle 120 kg BMU Monorail cradle 240 kg

 

Cụm xe đẩy trolley gắn động cơ điện

BMU Monorail kết hợp với Cabin 240 kg di chuyển ngang

Liên hệ

Mr: Nghĩa      
Hotline: 0972441356                 Email : nghia.vu@megalift.com.vn    
Fax: 0462843504 Website: megalift.com.vn